Primero Bienes Raíces
Primero Bienes Raíces
  • Cell: +526642747467
  • Office: 6647995680
  • Email: info@primerobr.com

Locales y Oficinas en Plaza Sienna, Tijuana

Cañón de La Pedrera, Tijuana

US$ 1,464 For Rent

  • 1 Bathrooms
  • 91 m² total space
  • 91 m² Lot Size
  • EB-UW4109 ID
Description

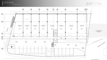
Locales y Oficinas en Plaza Sienna

Espacios comerciales ubicados en una nueva plaza sobre el Blvd. Cuauhtémoc Sur, en una esquina estratégica con alto flujo vehicular y rodeado de zonas residenciales y comerciales. Ideal para oficinas, consultorios o comercio especializado. Aprovecha esta ubicación con una excelente conectividad a vialidades principales de Tijuana. Contáctanos para más información o para agendar una visita.

Locales disponibles:
Local Renta
91.5 m² USD $1,464 por mes
103 m² USD $1,468 por mes
111 m² USD $1,776 por mes
116 m² USD $1,856 por mes
136 m² USD $2,176 por mes

** Todos los locales se encuentran en el segundo piso.

Amenidades

• Cisterna.
• Estacionamiento techado.
• Accesibilidad para adultos mayores.
• Accesibilidad para personas con discapacidad.
• Seguridad 24 horas.
• Facilidad para estacionarse.
• Accesibilidad para adultos mayores.
• Accesibilidad para personas con discapacidad.
• Seguridad 24 horas.

Notas Importantes

• Solamente quedan disponibles locales en el segundo piso.
• La plaza está en construcción. Fecha de entrega planeada para el primer trimestre del 2026.
• Se catalogan como “oficinas” pero también son locales (se aceptan distintos giros).
• Los estacionamientos no son asignados, sino que cada quien se estaciona en lo disponible.
• No se autorizan giros que impliquen muchas horas (para que no ocupen tanto tiempo de estacionamiento).
• Los locales se entregan en obra gris.
• Cada locatario, de acuerdo a su giro, hace las adecuaciones que se necesiten a los locales.

Solicita más información

Amenities
  • Street parking
Primero Bienes Raíces
Primero Bienes Raíces
  • Cell: +526642747467
  • Office: 6647995680
  • Email: info@primerobr.com
Primero Bienes Raíces
Primero Bienes Raíces
  • Cell: +526642747467
  • Office: 6647995680
  • Email: info@primerobr.com